Nordic Retreat
Location
Vanderbilt, Michigan
Size / Type
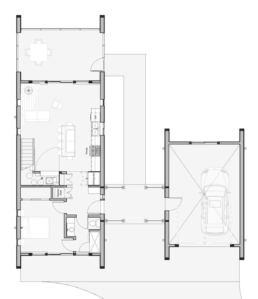
1380 SF single family cabin w/ 432 SF attached garage. 2 bed / 2 bath
Description
Nordic Retreat is a compact, high-performance home designed for simple living in Northern Michigan’s four-season climate. The project pairs two gabled volumes — a primary living structure and a detached garage connected by a glazed breezeway — creating a modern interpretation of the traditional up-north cabin.
The main volume is defined by a dramatic vaulted ceiling and a two-story glass wall that captures woodland views while flooding the interior with natural light. Vertical black metal siding and a standing seam roof reinforce the home’s clean, Scandinavian-inspired aesthetic. Inside, warm wood floors, minimalist detailing, and an efficient open-concept layout create a space that feels both expansive and intimate.
At just over 1,300 square feet including loft space, the home prioritizes thoughtful spatial efficiency. The main level includes a primary bedroom, full bath, laundry, and an open kitchen/living area anchored by a wood stove. Above, a loft and additional bath provide flexible guest accommodations while maintaining visual connection to the great room below. A screened in porch on the rear end of the house allows enjoyment of warm summer days without the bother of insects.
Nordic Retreat demonstrates how modest square footage, when paired with intentional design and strong architectural form, can deliver a refined, durable, and deeply livable home.
Project Status
Design completed



loft level floor plan

main level floor plan


